 
          
                    1  L折(zhe)最(zui)小(xiao)折(zhe)邊尺(chi)寸(cun)為公式(7)(如圖五): Lmin =(V/2)+ 2 + t ………(7)不同(tong)材料厚(hou)度的最(zui)小(xiao)折(zhe)邊尺(chi)寸(cun)Lmin(見表5)。2 最(zui)小(xiao)Z型(xing)折(zhe)邊中間高度(如圖六)Z型(xing)折(zhe)邊中間高度
Read More.. 
          
                    焊接(jie),也稱作熔(rong)接(jie)、镕接(jie),是一(yi)種以加熱、高溫或者高壓的方式(shi)接(jie)合(he)金(jin)屬(shu)或其他熱塑性材料如(ru)塑料的制(zhi)造工藝及(ji)技(ji)術(shu)。 焊接(jie)透過下(xia)列三種途(tu)徑達成接(jie)合(he)的目的:① 加熱欲接(jie)合(he)
Read More.. 
          
                    常用的焊(han)(han)(han)接工藝(yi)有:?→電弧(hu)(hu)(hu)焊(han)(han)(han)(氬弧(hu)(hu)(hu)焊(han)(han)(han)、手弧(hu)(hu)(hu)焊(han)(han)(han)、埋弧(hu)(hu)(hu)焊(han)(han)(han)、鎢極(ji)氣體(ti)(ti)保護電弧(hu)(hu)(hu)焊(han)(han)(han)、等離子弧(hu)(hu)(hu)焊(han)(han)(han)、氣體(ti)(ti)保護焊(han)(han)(han))?→電阻焊(han)(han)(han)?→高能束焊(han)(han)(han)(電子束焊(han)(han)(han)、激(ji)光焊(han)(han)(han))?→釬(han)焊(han)(han)(han)?→以(yi)電阻熱
Read More.. 
          
                    一.現代自動化(hua)焊(han)(han)接(jie)裝備的技(ji)術(shu)要(yao)求(qiu)為實(shi)現中(zhong)大(da)型焊(han)(han)件(jian)焊(han)(han)接(jie)生產(chan)過程的自動化(hua),現代自動化(hua)焊(han)(han)接(jie)裝備應(ying)基本滿足如下(xia)技(ji)術(shu)要(yao)求(qiu)。1.采用高效焊(han)(han)接(jie)方(fang)法,中(zhong)大(da)型焊(han)(han)件(jian)大(da)多數(shu)為厚壁
Read More.. 
          
                    滾動軸(zhou)承:在支承負(fu)荷和彼此相對運動的零(ling)件間作滾動運動的軸(zhou)承,它(ta)包括有滾道的零(ling)件和帶或(huo)不帶隔離或(huo)引導(dao)件的滾動體組。可用(yong)于承受徑(jing)(jing)向、軸(zhou)向或(huo)徑(jing)(jing)向與軸(zhou)向的聯合負(fu)
Read More.. 
          
                    工業機(ji)器(qi)人的廠(chang)商(shang)如雨(yu)后春筍一般,大大小小數以千計。為什么有這么多工業機(ji)器(qi)人制造商(shang)了(le)(le),他們是依靠了(le)(le)什么?才(cai)有了(le)(le)工業機(ji)器(qi)人。我們來看大部分中國(guo)的工業機(ji)器(qi)人是怎(zen)
Read More.. 
          
                    在加工(gong)中心操(cao)作(zuo)中,如何使工(gong)件夾牢夾緊呢?這就(jiu)會用(yong)到夾具(ju)(ju)。那么,今天我就(jiu)將我們在操(cao)作(zuo)中經(jing)常用(yong)到的夾具(ju)(ju)匯總(zong)一下。1,卡(ka)盤(pan)。卡(ka)盤(pan)可以說對我們機械人是熟的不能在熟的
Read More.. 
          
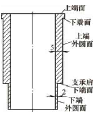
                    1.氣缸套及其加(jia)工特(te)點氣缸套是汽車發(fa)(fa)(fa)動機的核心零件,它鑲(xiang)在缸體缸筒內,與活塞(sai)和缸蓋共同(tong)組成燃燒室(shi),直接影響汽車發(fa)(fa)(fa)動機燃油效(xiao)率。隨著國家對發(fa)(fa)(fa)動機尾氣排放要求的
Read More.. 
          
                    數控加工中心是模具加工時的常用設備(bei),該設備(bei)自動化(hua)程度較高,可以(yi)通過(guo)編寫程序進(jin)行控制,因此結(jie)構較為復雜。我(wo)們(men)在使用過(guo)程中要(yao)格外注意,一旦損壞,將會給企業帶來損
Read More..