氣(qi)缸套是(shi)汽(qi)車(che)發動(dong)機(ji)(ji)(ji)的(de)(de)核心零(ling)件,它鑲在缸體缸筒內(nei),與(yu)活塞和(he)缸蓋共同組成燃(ran)燒室,直接影(ying)響汽(qi)車(che)發動(dong)機(ji)(ji)(ji)燃(ran)油(you)效率。隨著國家對發動(dong)機(ji)(ji)(ji)尾氣(qi)排放要(yao)求(qiu)的(de)(de)提(ti)高,行業對氣(qi)缸套內(nei)孔網紋(wen)網數(shu)和(he)幾(ji)何尺寸、幾(ji)何公差等(deng)精度提(ti)出了更高的(de)(de)要(yao)求(qiu)。
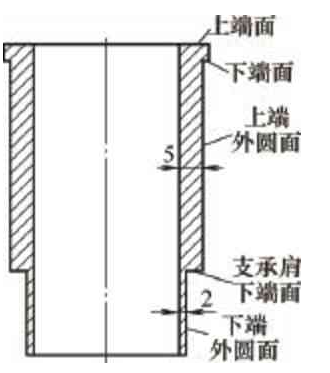
在氣缸套機加(jia)工(gong)過程中(zhong),將缸套內孔(kong)作為最終加(jia)工(gong),缸套內孔(kong)加(jia)工(gong)采用專用設備珩(heng)磨機,珩(heng)磨夾(jia)具(ju)對氣缸套內孔(kong)加(jia)工(gong)精(jing)度影響(xiang)較大,它(ta)取(qu)決于夾(jia)具(ju)的(de)夾(jia)緊力(li)是否能引起缸套發生變形,夾(jia)具(ju)所選擇(ze)的(de)定位面(mian)精(jing)度是否高。以我司生產的(de)1種氣缸套結構為例,如圖1所示,缸套內孔(kong)的(de)網紋參數、幾(ji)何(he)尺寸、圓度和(he)直線度等幾(ji)何(he)公差(cha)精(jing)度用傳統珩(heng)磨工(gong)裝夾(jia)具(ju)難以保(bao)證。特(te)別(bie)是厚和(he)薄交接的(de)地方,常(chang)常(chang)出現(xian)以上(shang)問(wen)題。
6) 應急換向(xiang)。該操作是將(jiang)車(che)鐘手(shou)柄從海上全速正車(che)位置直接扳到倒車(che)任意位置時的一種(zhong)緊急操作。在應急換向(xiang)情況下,主(zhu)機(ji)轉速下降(jiang)到制(zhi)動轉速,輸出空氣剎車(che)指令控(kong)制(zhi)主(zhu)機(ji)轉速快速下降(jiang),待主(zhu)機(ji)停(ting)機(ji)之(zhi)后反向(xiang)啟動主(zhu)機(ji)。

圖1 工件
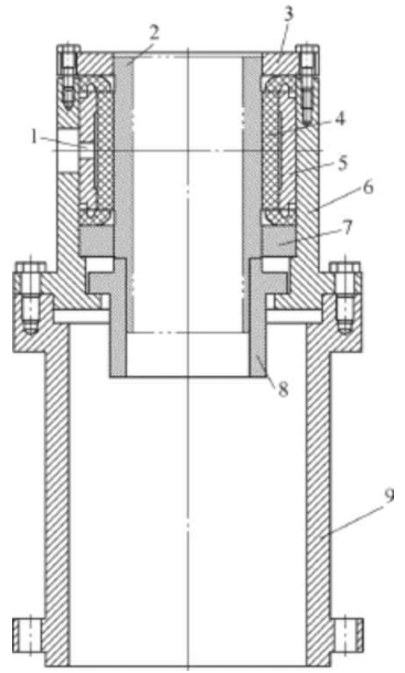
(1)傳統珩(heng)磨(mo)機工作原理。珩(heng)磨(mo)內孔工序(xu)是在專用(yong)珩(heng)磨(mo)機上進行(xing)的(de),研制(zhi)前(qian)為手動簡易夾緊,用(yong)螺母(mu)手動夾緊+隨行(xing)套(tao)夾具,如(ru)圖2所示。
工作原理:將缸套放入隨行套,以工件的臺階(jie)下(xia)端面(mian)及缸套上端外圓面(mian)定位,螺(luo)母(mu)臺階(jie)面(mian)壓緊缸套上端面(mian),螺(luo)母(mu)用敲棍手動(dong)鎖(suo)緊和(he)松開。
用(yong)(yong)螺母手動(dong)夾緊(jin)+隨(sui)行(xing)套夾具缺點(dian):①用(yong)(yong)手工夾緊(jin)勞動(dong)強度(du)(du)大,安全系(xi)數差。②夾緊(jin)、松開速度(du)(du)慢,夾緊(jin)力(li)也不穩定(ding)。 ③用(yong)(yong)缸(gang)套上(shang)端(duan)外圓(yuan)面定(ding)位,下端(duan)外圓(yuan)面懸空隨(sui)行(xing)中,變形比較大。④缸(gang)套厚薄交接的(de)地方加工尺寸、網紋參數、圓(yuan)度(du)(du)、直線度(du)(du)與外圓(yuan)同軸度(du)(du)不穩定(ding)。⑤生(sheng)產效率低。
典型斷面(mian)(mian)在(zai)管片收(shou)斂整(zheng)治(zhi)期間,管片水(shui)(shui)(shui)(shui)平(ping)(ping)位(wei)移(yi)(yi)時(shi)(shi)程曲(qu)線(xian)見(jian)(jian)圖2,水(shui)(shui)(shui)(shui)平(ping)(ping)位(wei)移(yi)(yi)分布曲(qu)線(xian)見(jian)(jian)圖3。注(zhu)漿(jiang)結(jie)束時(shi)(shi)各斷面(mian)(mian)的(de)水(shui)(shui)(shui)(shui)平(ping)(ping)位(wei)移(yi)(yi)統計見(jian)(jian)表(biao)(biao)1。由圖2~3和(he)表(biao)(biao)1分析得到(dao)水(shui)(shui)(shui)(shui)平(ping)(ping)位(wei)移(yi)(yi)的(de)動(dong)態變(bian)(bian)化規律(lv)主要有:①各個斷面(mian)(mian)的(de)水(shui)(shui)(shui)(shui)平(ping)(ping)位(wei)移(yi)(yi)變(bian)(bian)化特征均不同,當隧道收(shou)斂整(zheng)治(zhi)注(zhu)漿(jiang)靠近監測斷面(mian)(mian)時(shi)(shi),水(shui)(shui)(shui)(shui)平(ping)(ping)位(wei)移(yi)(yi)有明(ming)顯的(de)突變(bian)(bian)增加,當注(zhu)漿(jiang)位(wei)置稍遠離監測斷面(mian)(mian)時(shi)(shi),水(shui)(shui)(shui)(shui)平(ping)(ping)位(wei)移(yi)(yi)的(de)突變(bian)(bian)增加減弱;②注(zhu)漿(jiang)結(jie)束時(shi)(shi),最大(da)水(shui)(shui)(shui)(shui)平(ping)(ping)位(wei)移(yi)(yi)主要發生在(zai)第352環(即(ji)注(zhu)漿(jiang)區間中部位(wei)置);③注(zhu)漿(jiang)區間中部水(shui)(shui)(shui)(shui)平(ping)(ping)位(wei)移(yi)(yi)由逐(zhu)漸(jian)增大(da),逐(zhu)步(bu)演變(bian)(bian)為中間正(zheng)向水(shui)(shui)(shui)(shui)平(ping)(ping)位(wei)移(yi)(yi)逐(zhu)漸(jian)減小,兩(liang)側負向水(shui)(shui)(shui)(shui)平(ping)(ping)位(wei)置逐(zhu)漸(jian)增大(da)。

圖2 螺母手動夾緊+隨行套(tao)夾具(ju)
1.鎖緊螺母 2.缸套 3.隨行套 4.聯接盤(pan)5.定(ding)位座
(2)工(gong)藝(yi)改(gai)進:為(wei)解決上(shang)述問題,我們(men)研制了(le)液壓橡膠(jiao)套+護套自(zi)定心夾(jia)具(ju),如(ru)圖3所(suo)示。
工作原理:將缸套(tao)(tao)(tao)(tao)(tao)放入橡(xiang)膠套(tao)(tao)(tao)(tao)(tao)內,下端(duan)(duan)外(wai)圓面(mian)進入護(hu)套(tao)(tao)(tao)(tao)(tao),以(yi)缸套(tao)(tao)(tao)(tao)(tao)支(zhi)承肩下端(duan)(duan)面(mian)定位在護(hu)套(tao)(tao)(tao)(tao)(tao)上(shang)端(duan)(duan)面(mian);通(tong)過液(ye)壓油進入橡(xiang)膠內套(tao)(tao)(tao)(tao)(tao),撐開橡(xiang)膠套(tao)(tao)(tao)(tao)(tao),自動定心夾(jia)緊缸套(tao)(tao)(tao)(tao)(tao)上(shang)端(duan)(duan)外(wai)圓面(mian)。

液壓橡膠套+護套自定心夾具
1.進油口 2.缸套 3.上壓(ya)蓋 4.橡膠(jiao)套5.橡膠(jiao)內套 6.聯接盤(pan) 7.隔墊8.護(hu)套 9.定(ding)位座
結構要點:
①缸套上端外圓與橡膠套配合(he)間隙不得大于0.5mm。
②缸(gang)套(tao)下端外圓(yuan)面(mian)與護(hu)套(tao)配合間隙0.03~0.05mm。
③護(hu)套必須在本機自磨,保(bao)證自定(ding)心精度。
④護(hu)套臺階外(wai)圓與(yu)聯接盤內孔間(jian)隙要在(zai)0.2mm以(yi)上,護(hu)套上端面(mian)與(yu)隔墊下端面(mian)間(jian)隙在(zai)0.3mm以(yi)上。
⑤為保證(zheng)氣(qi)缸套(tao)在珩(heng)磨(mo)時(shi)不(bu)打滑,設計(ji)橡膠(jiao)(jiao)套(tao)時(shi)應保證(zheng)橡膠(jiao)(jiao)套(tao)和氣(qi)缸套(tao)之間的(de)靜摩擦(ca)力(li)大(da)于(yu)金剛石砂條作(zuo)用于(yu)氣(qi)缸套(tao)內徑(jing)的(de)切削力(li)。
⑥橡膠套材料(liao)應采用耐油(you)橡膠,有一定的彈(dan)性和抗拉強度。
由此,便可確定各個目標(biao)的權重系(xi)數(shu)(shu),將多目標(biao)優(you)化(hua)(hua)問題轉為單目標(biao)優(you)化(hua)(hua),將布谷鳥搜索算(suan)法應用于微電網的優(you)化(hua)(hua)調度中(zhong),得到的優(you)化(hua)(hua)結(jie)果如圖3所(suo)示。圖3中(zhong),PGrid1是主要考慮(lv)優(you)化(hua)(hua)波動系(xi)數(shu)(shu)后的聯絡線(xian)(xian)功率;PGrid2是以最小化(hua)(hua)購電成本為主要優(you)化(hua)(hua)對象后的聯絡線(xian)(xian)功率;PGrid3是基于上(shang)述二人(ren)零和博弈模型(xing)下(xia),同時考慮(lv)了購電成本與波動系(xi)數(shu)(shu)后的優(you)化(hua)(hua)結(jie)果。
加工優點:該裝置主要是靠(kao)(kao)橡膠套(tao)來夾緊和松開(kai)工件(jian),具有(you)簡(jian)單方(fang)便、干凈、傳(chuan)遞速度快(kuai)、夾緊力柔和可(ke)靠(kao)(kao)及變形小等(deng)特點,在(zai)正(zheng)常條件(jian)下,可(ke)有(you)效地(di)保證被加工工件(jian)的(de)網紋參數、幾何尺寸(cun)和幾何公(gong)差精度。
使用改進工藝后的(de)液壓橡膠套+護套自定心夾具,提高了(le)夾具夾緊(jin)、松開速度,解決了(le)內(nei)(nei)孔(kong)厚薄(bo)交接地方尺寸不穩定的(de)問題,保證內(nei)(nei)孔(kong)的(de)直線度和圓度都(dou)在(zai)0.01mm以內(nei)(nei),內(nei)(nei)孔(kong)網紋(wen)參(can)數指(zhi)標也大為(wei)提高,降低工人的(de)勞(lao)動強度,生產效率提高了(le)30%。