在加工(gong)零件(jian)上(shang)的平面(mian)、溝槽、缺(que)口、花鍵及成形(xing)面(mian)時經常(chang)會(hui)提到一種工(gong)藝——銑(xian)加工(gong)。那么,相應的銑(xian)床夾(jia)具是(shi)如何配套設(she)計的呢?
按照銑削時的進給方式,通常將銑床夾具分為:直線進給式、圓周進給式及靠模銑夾具。
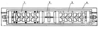
這類夾具安(an)裝在(zai)(zai)銑(xian)床工(gong)作(zuo)臺(tai)上(shang),在(zai)(zai)加(jia)工(gong)中隨(sui)工(gong)作(zuo)臺(tai)按(an)直線進給方式運動(dong)。按(an)照在(zai)(zai)夾具中同(tong)時安(an)裝工(gong)件的數目和工(gong)位多少分為(wei)單件加(jia)工(gong)、多件加(jia)工(gong)和多工(gong)位加(jia)工(gong)夾具。

圖1 多件加工的(de)直線進給(gei)式銑床夾具
1-小軸 2-活動(dong)V形塊 3-彈簧(huang) 4-夾緊元件 5-薄膜式汽(qi)缸 6-支(zhi)承釘 7-導向柱(zhu) 8-定位(wei)鍵(jian) 9-對刀塊

圖2 雙向(xiang)進給銑床夾具
1、3-夾具 2-銑刀 4 -銑床工作臺
圓周進給(gei)銑床(chuang)(chuang)夾具多用在(zai)回(hui)轉工(gong)(gong)作(zuo)臺或回(hui)轉鼓(gu)輪的(de)(de)銑床(chuang)(chuang)上,依靠回(hui)轉臺或鼓(gu)輪的(de)(de)旋(xuan)轉將工(gong)(gong)件順序送入銑床(chuang)(chuang)的(de)(de)加工(gong)(gong)區域,實現連(lian)續切削(xue)。在(zai)切削(xue)的(de)(de)同時(shi),可在(zai)裝卸(xie)區域裝卸(xie)工(gong)(gong)件,使輔助時(shi)間與(yu)機動時(shi)間重合(he)。

圖3 圓周進(jin)給(gei)銑床夾具
1-拉桿 2-定位(wei)銷 3-快換墊圈 4-擋銷 5-轉臺(tai) 6-液(ye)壓缸
帶有靠模(mo)裝置(zhi)的銑床夾(jia)具,適用于專用或通用銑床上(shang)加工各種成(cheng)形(xing)面。靠模(mo)夾(jia)具的作用是使主進給運動(dong)和由靠模(mo)獲得(de)的輔(fu)助運動(dong)合(he)成(cheng)加工所需(xu)的仿形(xing)運動(dong)。

圖(tu)4 直線進(jin)給式(shi)靠(kao)模(mo)銑床夾具
1-工件 2-銑(xian)刀 3-靠模 4-滾子 5-滾子滑(hua)(hua)座(zuo) 6-銑(xian)刀滑(hua)(hua)座(zuo)

圖5 圓周進給式靠模銑床(chuang)夾具
1-工(gong)件 2-靠模 3-回(hui)轉工(gong)作臺 4-滑(hua)座(zuo) 5-滾子 6-銑(xian)刀
加工需求:工件為一水泵(beng)葉輪,要求設計(ji)一副銑床夾具,用在(zai)臥式銑床上加工兩條互成90°的十字槽(cao),如圖6、7所示:

圖6

圖(tu)7 工(gong)件三圍結構圖(tu)
確定定位方案:圓柱孔定位(wei)和平(ping)面定位(wei)
1.將(jiang)加工過的(de)葉(xie)輪(lun)底面放置(zhi)在(zai)一(yi)個大(da)的(de)圓形(xing)定位(wei)盤上,以大(da)平面定位(wei),消(xiao)除(chu)X,Y方向(xiang)的(de)轉動自(zi)由(you)度和(he)Z方向(xiang)的(de)移動自(zi)由(you)度。
2.用一(yi)個(ge)定位銷與葉(xie)輪上的孔(kong)相配合(he),以此消除X,Y的移(yi)動自由度。
3.利(li)用兩塊(kuai)開槽(cao)的壓(ya)板(ban)從兩個(ge)方向(xiang)卡住葉片,并將(jiang)它們固(gu)定(ding)在定(ding)位盤上(shang),這樣就消除(chu)了Z方向(xiang)的轉(zhuan)動自由度。

圖8

圖9 定位裝置
確定夾緊方案:螺旋夾緊
1.工(gong)件(jian)以中心孔及底面(mian)在定位銷和定位盤(pan)的(de)端面(mian)上定位,并使(shi)葉輪上的(de)葉片與壓板(ban)頭部的(de)缺口對中,旋轉螺(luo)母,通(tong)過杠(gang)桿使(shi)兩(liang)塊壓板(ban)同時夾緊工(gong)件(jian)。
2.選用移動(dong)式彎(wan)曲壓板,它的優點(dian)是(shi)可以實現快速裝(zhuang)拆(chai)。

圖10 夾緊裝置
確定分度機構:分度盤加定位銷
1.設(she)計一個分(fen)度盤(pan),盤(pan)底有四段斜(xie)槽,分(fen)度盤(pan)與定位(wei)盤(pan)之間用螺釘固定。
2.在夾具體上開一沉頭孔,孔中放入銷(xiao)(xiao)套,銷(xiao)(xiao)套與(yu)定位銷(xiao)(xiao)配合,底部(bu)有彈(dan)簧.這樣,當分度盤轉動(dong)時,銷(xiao)(xiao)始終在斜槽(cao)中運動(dong).每(mei)轉過90°,銷(xiao)(xiao)就在彈(dan)簧的作用上升至最高(gao)點(dian),反靠(kao)夾緊(jin)。

圖11

圖12 分度裝置

圖13夾具體(ti)與(yu)定位鍵

圖14夾具工程圖