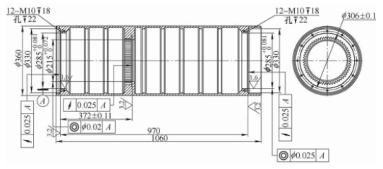
在(zai)(zai)某型天線裝(zhuang)置(zhi)中,需要在(zai)(zai)一(yi)個不銹鋼(gang)深卷筒中嵌入設(she)計一(yi)個內(nei)嚙合齒輪(見圖1),并保證該內(nei)嚙合齒輪的分度圓和該卷筒內(nei)多個同軸定位(wei)孔(kong)之間(jian)至少七級精度以上的同軸度要求.
內(nei)(nei)(nei)嚙合(he)(he)齒輪通(tong)常(chang)采用滾齒或者插(cha)齒的(de)加(jia)工方式來實(shi)現設(she)計(ji)要(yao)求,而由于該(gai)內(nei)(nei)(nei)嚙合(he)(he)齒輪內(nei)(nei)(nei)嵌在不(bu)銹鋼深(shen)卷筒內(nei)(nei)(nei),并和該(gai)卷筒形成一個整體,所以無論滾齒機還是(shi)插(cha)齒機,都無法對深(shen)孔內(nei)(nei)(nei)的(de)內(nei)(nei)(nei)嚙合(he)(he)齒輪進(jin)行加(jia)工,所以通(tong)過加(jia)工手段直(zhi)接(jie)實(shi)現該(gai)設(she)計(ji)的(de)結構形式是(shi)無法完成的(de),需要(yao)通(tong)過工藝手段的(de)調整來達到設(she)計(ji)意(yi)圖.
最(zui)(zui)簡單(dan)便捷的(de)工藝手段就是將卷(juan)筒和齒輪分成兩個(ge)零件(jian)加工,最(zui)(zui)后通過固(gu)定(ding)連(lian)接形成一個(ge)整體.固(gu)定(ding)連(lian)接的(de)方式(shi)通常有(you)兩種:螺釘固(gu)連(lian)和焊接固(gu)連(lian).
螺釘(ding)(ding)固連(lian)這種方式需要在深(shen)卷(juan)(juan)筒(tong)(tong)內(nei)(nei)部進(jin)(jin)(jin)行(xing)(xing)(xing)打(da)孔攻螺紋的(de)(de)操作,而鉆床在卷(juan)(juan)筒(tong)(tong)內(nei)(nei)部進(jin)(jin)(jin)行(xing)(xing)(xing)鉆深(shen)孔操作也(ye)有很大(da)的(de)(de)操作困難:①無法進(jin)(jin)(jin)行(xing)(xing)(xing)鉆孔前的(de)(de)劃線和打(da)點工(gong)(gong)作.②齒輪在卷(juan)(juan)筒(tong)(tong)內(nei)(nei)的(de)(de)安(an)裝(zhuang)面距離卷(juan)(juan)筒(tong)(tong)外側端面的(de)(de)距離長短(duan),直接決定(ding)了加長鉆頭(tou)的(de)(de)長短(duan),使用過長的(de)(de)加長鉆頭(tou)進(jin)(jin)(jin)行(xing)(xing)(xing)加工(gong)(gong)容易(yi)使鉆頭(tou)斷裂.③即便以上問題都(dou)解決了,在卷(juan)(juan)筒(tong)(tong)內(nei)(nei)進(jin)(jin)(jin)行(xing)(xing)(xing)對準孔位、上螺釘(ding)(ding)和擰螺釘(ding)(ding)等操作,也(ye)因為空間的(de)(de)狹小而難以施展(zhan).
綜上所(suo)述,采(cai)用瑞替普酶治(zhi)療急(ji)(ji)性心(xin)肌梗(geng)(geng)死冠狀(zhuang)動脈再(zai)通率效果更佳,再(zai)通時間早、方便(bian)給藥(yao)、藥(yao)物作用時間長,臨床效果好(hao),是治(zhi)療急(ji)(ji)性心(xin)肌梗(geng)(geng)死的較(jiao)理想的溶栓藥(yao)物。
鑒于(yu)螺釘固連(lian)的方式(shi)(shi)可行性較低,所(suo)以考(kao)慮采用(yong)另一種固連(lian)方式(shi)(shi):焊接(jie)固連(lian).

圖1 不(bu)銹鋼深卷筒(tong)及其內嵌(qian)式內嚙合齒輪(lun)結構尺(chi)寸(cun)
相比螺釘固連,焊(han)接固連這種方(fang)式實(shi)施起(qi)來更加(jia)容(rong)易(yi)、便捷一(yi)些(xie),唯一(yi)的(de)問題就是焊(han)接會產生(sheng)熱變(bian)形,從(cong)而(er)影響齒輪和卷筒的(de)精度.
在(zai)焊(han)(han)接(jie)前,先對卷筒和(he)內嚙合(he)齒(chi)輪進行(xing)獨立(li)加工(gong),留出(chu)焊(han)(han)接(jie)坡口(見圖2),為了減小焊(han)(han)接(jie)固(gu)連后(hou)焊(han)(han)縫的(de)受(shou)力,卷筒和(he)內嚙合(he)齒(chi)輪的(de)裝(zhuang)配(pei)(pei)(pei)尺寸公差采用(yong)過(guo)盈配(pei)(pei)(pei)合(he)(H7/n6).裝(zhuang)配(pei)(pei)(pei)后(hou),由于材料的(de)彈性變形,使配(pei)(pei)(pei)合(he)面之間產生壓力,因此在(zai)工(gong)作(zuo)時,配(pei)(pei)(pei)合(he)面間具有(you)相當的(de)摩(mo)擦(ca)力來傳遞扭矩或軸(zhou)向力.
過盈配合裝配一(yi)般屬于不可拆卸的固定連接,但如果沒有焊縫(feng)(feng)補強,其(qi)傳遞的扭矩過大,會(hui)使卷筒和內嚙合齒輪之間產(chan)生相對(dui)位移,從而破(po)壞過盈緊固,所(suo)以必須同時采用過盈配合和焊縫(feng)(feng)補強來(lai)共同實現焊接固連.
過(guo)盈(ying)配(pei)(pei)合件的(de)裝(zhuang)配(pei)(pei)方法(fa)通(tong)常(chang)有4種:人工錘(chui)擊法(fa)、壓(ya)力(li)機(ji)壓(ya)入(ru)法(fa)、熱裝(zhuang)法(fa)和冷裝(zhuang)法(fa).其中(zhong)人工錘(chui)擊法(fa)適用(yong)于過(guo)渡配(pei)(pei)合的(de)小(xiao)零(ling)件裝(zhuang)配(pei)(pei);壓(ya)力(li)機(ji)壓(ya)入(ru)法(fa)適用(yong)于常(chang)溫下過(guo)盈(ying)量較小(xiao)的(de)中(zhong)小(xiao)零(ling)件裝(zhuang)配(pei)(pei);熱裝(zhuang)法(fa)適用(yong)于過(guo)盈(ying)量較大的(de)零(ling)件;冷裝(zhuang)法(fa)適用(yong)于包(bao)容件無法(fa)加熱,或加熱會導致零(ling)件精度、材料(liao)組織變化,影響其力(li)學(xue)性能(neng)的(de)裝(zhuang)配(pei)(pei).綜上(shang)所述,采用(yong)壓(ya)力(li)機(ji)進(jin)行壓(ya)入(ru)裝(zhuang)配(pei)(pei)是更(geng)加合適的(de)過(guo)盈(ying)裝(zhuang)配(pei)(pei)方式(shi),能(neng)夠通(tong)過(guo)裝(zhuang)配(pei)(pei)來(lai)使齒輪(lun)和卷(juan)筒(tong)達到較高等級的(de)同軸度要求.
以(yi)公路(lu)(lu)工(gong)程所在區域對應的數字地形(xing)圖為基礎(chu),采用(yong)(yong)自(zi)動(dong)方式或手動(dong)方式完成路(lu)(lu)線(xian)(xian)(xian)平(ping)(ping)(ping)面布局,將(jiang)其作(zuo)為路(lu)(lu)線(xian)(xian)(xian)平(ping)(ping)(ping)面分析(xi)(xi)及橫、縱斷面分析(xi)(xi)的重要(yao)基礎(chu)。其主要(yao)功能包括:自(zi)動(dong)提取設(she)置文件與(yu)資(zi)源,對現有平(ping)(ping)(ping)面線(xian)(xian)(xian)路(lu)(lu)進行調(diao)用(yong)(yong);自(zi)動(dong)完成線(xian)(xian)(xian)路(lu)(lu)的設(she)置,根據相應的坡(po)度(du)范圍完成平(ping)(ping)(ping)面線(xian)(xian)(xian)路(lu)(lu)準(zhun)確設(she)置;對線(xian)(xian)(xian)路(lu)(lu)設(she)置進行保存,實現線(xian)(xian)(xian)路(lu)(lu)選定結果的存盤,為隨(sui)時調(diao)用(yong)(yong)做好準(zhun)備;進行平(ping)(ping)(ping)面線(xian)(xian)(xian)路(lu)(lu)綜(zong)合分析(xi)(xi),即按照設(she)計要(yao)求對選定線(xian)(xian)(xian)路(lu)(lu)的轉角(jiao)及坡(po)度(du)進行分析(xi)(xi)[1]。
在(zai)壓(ya)裝(zhuang)過程(cheng)中,按照以下步驟進行:①將內(nei)嚙(nie)合(he)齒(chi)輪外徑水(shui)(shui)平置(zhi)于(yu)(yu)將要壓(ya)入的卷筒(tong)內(nei)徑端面(mian)上(shang).②由于(yu)(yu)壓(ya)力(li)(li)機(ji)(ji)的壓(ya)頭(tou)無法進入環形深(shen)槽(cao)進行壓(ya)裝(zhuang),需要制作(zuo)一(yi)個(ge)簡單工(gong)裝(zhuang),將直徑約284mm、長度(du)約500mm的金(jin)屬(shu)棒(bang)(bang)(bang)料(liao)置(zhi)于(yu)(yu)卷筒(tong)內(nei)的內(nei)嚙(nie)合(he)齒(chi)輪上(shang)表(biao)面(mian).③確定金(jin)屬(shu)棒(bang)(bang)(bang)料(liao)的上(shang)端面(mian)水(shui)(shui)平后(hou),壓(ya)力(li)(li)機(ji)(ji)壓(ya)頭(tou)頂住金(jin)屬(shu)棒(bang)(bang)(bang)上(shang)端面(mian),壓(ya)入速(su)度(du)不宜太(tai)快,采用2~4mm/s.④壓(ya)入過程(cheng)中時刻(ke)關(guan)注壓(ya)力(li)(li)表(biao)的壓(ya)力(li)(li)顯示,確保壓(ya)力(li)(li)變化平穩,如果出(chu)現壓(ya)力(li)(li)波動,立刻(ke)停機(ji)(ji)檢(jian)查零件.⑤壓(ya)到位后(hou)取出(chu)金(jin)屬(shu)棒(bang)(bang)(bang),確保內(nei)嚙(nie)合(he)齒(chi)輪上(shang)端面(mian)和卷筒(tong)焊接端面(mian)平齊.
壓(ya)力機壓(ya)裝完后,采用焊接進(jin)行齒(chi)輪(lun)和(he)卷(juan)筒的(de)緊固,焊接過程(cheng)中會(hui)產生大量的(de)熱(re),從而使焊縫(feng)周(zhou)圍的(de)齒(chi)廓以及卷(juan)筒內(nei)部發生熱(re)變形,這(zhe)些熱(re)變形會(hui)極大地(di)影響卷(juan)筒及其內(nei)嚙(nie)合齒(chi)輪(lun)的(de)形狀尺寸、幾何公(gong)差和(he)精度.
各種形(xing)式的(de)(de)社團生活(huo),讓老(lao)年人的(de)(de)晚(wan)年生活(huo)過(guo)得充實有意義。我的(de)(de)社區我的(de)(de)團,如果您所(suo)在的(de)(de)社團夠出彩(cai)、有特色,就可以(yi)聯(lian)系我們一起記(ji)錄社團生活(huo)的(de)(de)趣事和精彩(cai)瞬間,分(fen)享給大家。
針(zhen)對加工難點問題,采取的解決辦法如下(xia):
(1)構(gou)建合適的(de)焊(han)接(jie)環(huan)(huan)境.解決焊(han)接(jie)熱(re)(re)變形(xing)的(de)唯一途徑就是在產生(sheng)焊(han)接(jie)熱(re)(re)的(de)瞬間,外界(jie)環(huan)(huan)境能夠立刻(ke)將熱(re)(re)量(liang)吸(xi)收(shou)且達到(dao)瞬時冷卻降溫的(de)功效,構(gou)建這樣的(de)環(huan)(huan)境最(zui)直接(jie)簡易的(de)方式就是水(shui)冷.
其中:l1+l5=450 mm,且(qie)選定(ding) l1=300 mm,l5=150 mm,根(gen)據整個裝(zhuang)置的(de)長度和一(yi)般家庭使(shi)用的(de)座(zuo)便器的(de)尺(chi)寸選定(ding)l2一(yi)個合適的(de)值(zhi)為700 mm.

圖2 采用焊接形式(shi)的卷筒(tong)及(ji)其(qi)內(nei)嵌式(shi)內(nei)嚙合齒輪
(2)設計特(te)制(zhi)工裝.水冷是(shi)解(jie)決(jue)焊(han)接(jie)熱(re)(re)變形最行之有效(xiao)的方法(fa),如何使焊(han)縫盡可能地(di)接(jie)近水面(mian),如何使卷筒及(ji)內嚙合齒輪盡可能多地(di)和水接(jie)觸(chu),是(shi)吸(xi)收(shou)焊(han)接(jie)熱(re)(re)量的關鍵.
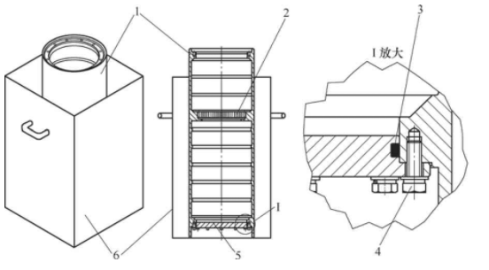
根據焊(han)接環境以及卷筒(tong)和(he)齒(chi)輪(lun)的(de)(de)結構特點,有針對性地(di)設計(ji)了一套(tao)焊(han)接工裝組件(jian),目的(de)(de)是達(da)到最大程度的(de)(de)水冷和(he)盡可能多地(di)吸收焊(han)接熱量.該工裝主要由水槽、封蓋、密封圈和(he)緊固(gu)螺釘(ding)組件(jian)構成(cheng)(見(jian)圖3).
水(shui)(shui)(shui)槽的作用是(shi)(shi)讓卷(juan)筒(tong)外側的水(shui)(shui)(shui)位線高(gao)于焊(han)縫,使傳遞(di)到卷(juan)筒(tong)外壁(bi)的焊(han)接(jie)熱量(liang)能夠完全(quan)被(bei)水(shui)(shui)(shui)吸收;封(feng)(feng)蓋、密封(feng)(feng)圈和緊固螺釘(ding)組件的作用是(shi)(shi)讓卷(juan)筒(tong)內部(bu)成為一個密封(feng)(feng)腔體(ti),往卷(juan)筒(tong)內注水(shui)(shui)(shui),使水(shui)(shui)(shui)位線盡(jin)可能地接(jie)近(jin)焊(han)縫,這樣焊(han)接(jie)直接(jie)產生(sheng)的大(da)量(liang)熱量(liang)會被(bei)內腔的水(shui)(shui)(shui)完全(quan)吸收(見(jian)圖4).
(3)焊(han)接(jie)(jie)細(xi)節和參數的(de)控制.在焊(han)接(jie)(jie)過程中,采(cai)用(yong)氬弧(hu)焊(han),要(yao)將焊(han)接(jie)(jie)電流調整得盡可能(neng)小,選較細(xi)規格的(de)焊(han)絲,焊(han)接(jie)(jie)速度盡可能(neng)慢,多(duo)停頓水冷,分(fen)多(duo)層完成(cheng)最終(zhong)的(de)焊(han)接(jie)(jie).
經過(guo)反復試驗摸索,以下焊(han)(han)接參數可以保證焊(han)(han)接釋放出的熱量較小:焊(han)(han)接方(fang)式為(wei)直流(liu)(liu)正(zheng)接;氬氣流(liu)(liu)量控制在(zai)(zai)10~15L/min;電流(liu)(liu)控制在(zai)(zai)80~110A;采用304不銹(xiu)鋼(gang)焊(han)(han)絲,焊(han)(han)絲規格為(wei)0.8mm或1mm.
本研(yan)究使用(yong)多種實(shi)驗動物(wu)(wu)模(mo)(mo)型(xing)(xing)綜合評價(jia)注(zhu)射用(yong)雷貝拉唑鈉的藥理學作用(yong)。胃潰(kui)瘍(yang)模(mo)(mo)型(xing)(xing)有多種,目(mu)前比較常用(yong)的大(da)(da)鼠胃潰(kui)瘍(yang)模(mo)(mo)型(xing)(xing)主要有應激(ji)性潰(kui)瘍(yang)(水(shui)浸應激(ji)模(mo)(mo)型(xing)(xing))、化學因(yin)(yin)素(su)型(xing)(xing)胃潰(kui)瘍(yang)模(mo)(mo)型(xing)(xing)(吲哚美辛法、醋酸(suan)性)及(ji)幽(you)門結扎(zha)型(xing)(xing)大(da)(da)鼠胃潰(kui)瘍(yang)模(mo)(mo)型(xing)(xing)等,隨著(zhu)分子(zi)生物(wu)(wu)學技術的發(fa)展,相(xiang)關技術也應用(yong)到潰(kui)瘍(yang)模(mo)(mo)型(xing)(xing)制備的領(ling)域中,如基因(yin)(yin)敲除技術、蛋白缺失技術等[11]。

圖3 特制工裝
1.卷筒 2.內嚙合齒輪(lun) 3.密(mi)封圈 4.緊(jin)固(gu)螺釘組件(jian) 5.封蓋 6.水槽

圖4 采用(yong)特制(zhi)工裝完成(cheng)卷筒(tong)及其內嵌式內嚙合(he)齒輪的焊接
卷(juan)筒(tong)內(nei)(nei)外腔的(de)水位線和(he)焊(han)(han)縫的(de)高度(du)(du)差最(zui)大(da)限度(du)(du)地(di)保(bao)(bao)證了(le)整個焊(han)(han)接(jie)(jie)(jie)過程近似(si)于在水中焊(han)(han)接(jie)(jie)(jie)的(de)效果,配合(he)(he)(he)特殊控(kong)制焊(han)(han)接(jie)(jie)(jie)熱量的(de)焊(han)(han)接(jie)(jie)(jie)手(shou)法(fa),極大(da)程度(du)(du)地(di)吸(xi)(xi)收了(le)焊(han)(han)接(jie)(jie)(jie)所產(chan)(chan)生(sheng)的(de)熱量,在相對較低溫度(du)(du)條件下(xia)完(wan)成了(le)焊(han)(han)接(jie)(jie)(jie),將卷(juan)筒(tong)和(he)內(nei)(nei)嚙合(he)(he)(he)齒輪合(he)(he)(he)為一體,且消除了(le)焊(han)(han)接(jie)(jie)(jie)變形(xing)對幾何公(gong)差的(de)影(ying)響,確保(bao)(bao)卷(juan)筒(tong)的(de)基準軸心和(he)內(nei)(nei)嚙合(he)(he)(he)齒輪的(de)基準軸心高度(du)(du)重合(he)(he)(he).為保(bao)(bao)證焊(han)(han)接(jie)(jie)(jie)時的(de)水冷(leng)效果,可以適當(dang)加大(da)水槽截面,并采用水泵進行循環水冷(leng)卻,使水槽和(he)卷(juan)筒(tong)內(nei)(nei)的(de)冷(leng)卻水形(xing)成一定的(de)溫度(du)(du)差,快速吸(xi)(xi)收焊(han)(han)接(jie)(jie)(jie)時產(chan)(chan)生(sheng)的(de)熱量,這樣控(kong)制焊(han)(han)接(jie)(jie)(jie)變形(xing)的(de)效果會更好(hao).
在形成共(gong)意的(de)(de)過程中,各個屬性粉絲群(qun)體(ti)的(de)(de)意見(jian)領袖便在沖(chong)突(tu)關系中凸顯出來,隨(sui)著沖(chong)突(tu)關系的(de)(de)日趨激烈,他們(men)的(de)(de)權威性便進一(yi)步樹立起來,成為(wei)其他粉絲競相追隨(sui)的(de)(de)對象,粉絲群(qun)體(ti)的(de)(de)凝聚力便由此提升。
通過設(she)計(ji)、工(gong)藝、加(jia)工(gong)、裝配(pei)及焊(han)(han)接之間相(xiang)互配(pei)合(he)、改進和(he)優化,較好地解決了(le)在(zai)不(bu)(bu)銹鋼(gang)深(shen)卷筒(tong)內通過焊(han)(han)接緊固的(de)(de)(de)(de)方(fang)式完成零(ling)件(jian)合(he)體,且達到將焊(han)(han)接熱變形(xing)的(de)(de)(de)(de)影響(xiang)降低到最小的(de)(de)(de)(de)效果,從而(er)保證(zheng)了(le)設(she)計(ji)要求,極大地提高了(le)產品的(de)(de)(de)(de)加(jia)工(gong)質(zhi)量(liang)和(he)精度(du),為類似結(jie)構的(de)(de)(de)(de)重要零(ling)部件(jian)提供了(le)創(chuang)新的(de)(de)(de)(de)思維模式和(he)啟發性的(de)(de)(de)(de)工(gong)藝路線,也(ye)對(dui)類似結(jie)構不(bu)(bu)銹鋼(gang)產品的(de)(de)(de)(de)加(jia)工(gong)具有一定(ding)的(de)(de)(de)(de)參考價值.